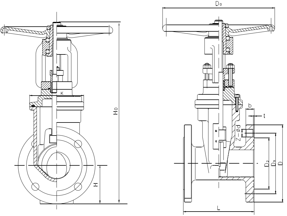
產品介紹
產品名稱:軟密封眀桿閘閥
產品型號:CZPS41X
眀桿軟密封閘閥用途概述:
明桿式彈性座封閘閥適用于消防供水系統、自動噴淋系統。常作為供水管路監控閥,保障消防系統的安全
明桿式彈性座封閘閥性能特點:·整體包膠閥芯
球墨鑄鐵骨架內外采用高性能橡膠EPDM進行整體包覆,閥芯的銅螺母與球墨鑄鐵骨架,采用特種工藝緊密連接為一體,貼合緊密牢靠,幾何尺寸精確,密封彈性佳,徹底將閥芯金屬與流體隔離,耐腐蝕。
·平底式閥座
本公司彈性座封閘閥底部采用全流域直通式設計,等同于一直管道,不易堆積雜物,確保密封可靠,使流體暢通無阻。
·自密封閥蓋
閥蓋與閥體間采用自密封結構設計,在許用壓力范圍內,流體壓力越高,密封越緊密。
·特殊上密封
閥桿與閥蓋間的上密封結構,采用二只“0”形密封圈(NBR)設計,與傳統閘閥的填料密封結構相比,道道密封緊密,磨擦阻力大幅減少。在閥門處于任何開度、有壓力且具備閥桿安全鎖定功能,確保在操作和維護過程中閥桿不會被壓力沖出,避免造成人員傷害
·結構輕巧
緊湊的結構,使最大工作高度較傳統閘閥降低60mm-300mm以上,節省工程 空間;本體采用球墨鑄鐵材料,重量較傳統閘閥減輕約20%-30%,安裝維修便利。


TEL:

E-mail us
PDF Download
Inquiry





