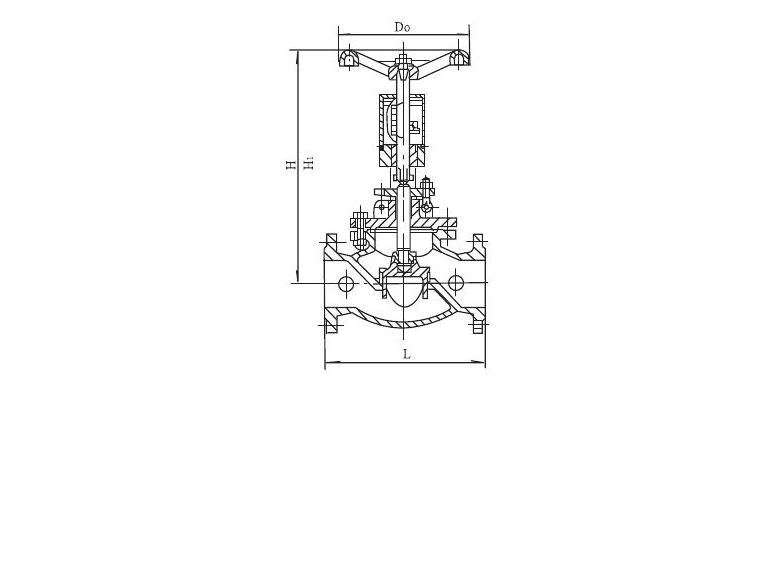
產品介紹
該閥是一種具有特殊功能的閥門,具有良好的流量特性,合理分配流量,實現流量定量,有效地解決供熱(空調)系統中存在的室溫冷熱不均問題。
由于該閥上設有開啟度指示,開度鎖定裝置及用于流量測定的測壓小閥,所以只要在各支路及用戶入口裝上適當規格的平衡閥,并用專用智能儀表進行一次性調試后鎖定,將系統的總流水量控制在合理范圍內,從而克服了“大流量,小溫差”的不合理現象。
該產品是供熱系統中的理想產品,最高介質溫度為200。C,歡迎選購。



該閥是一種具有特殊功能的閥門,具有良好的流量特性,合理分配流量,實現流量定量,有效地解決供熱(空調)系統中存在的室溫冷熱不均問題。
由于該閥上設有開啟度指示,開度鎖定裝置及用于流量測定的測壓小閥,所以只要在各支路及用戶入口裝上適當規格的平衡閥,并用專用智能儀表進行一次性調試后鎖定,將系統的總流水量控制在合理范圍內,從而克服了“大流量,小溫差”的不合理現象。
該產品是供熱系統中的理想產品,最高介質溫度為200。C,歡迎選購。


